'Library House"
|
|
Место:
Латвия, Рижский район, Юрмала, Асари
Цена:
143 032 €
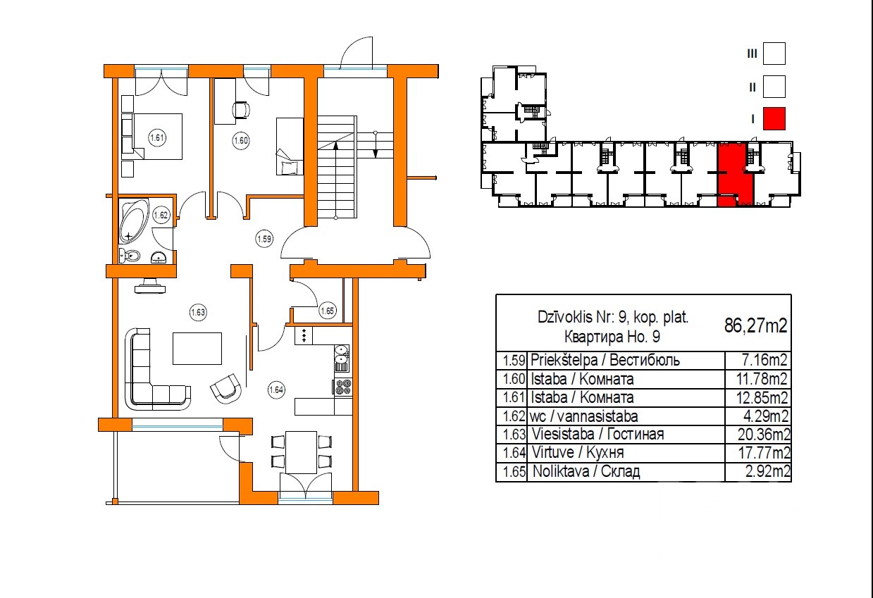
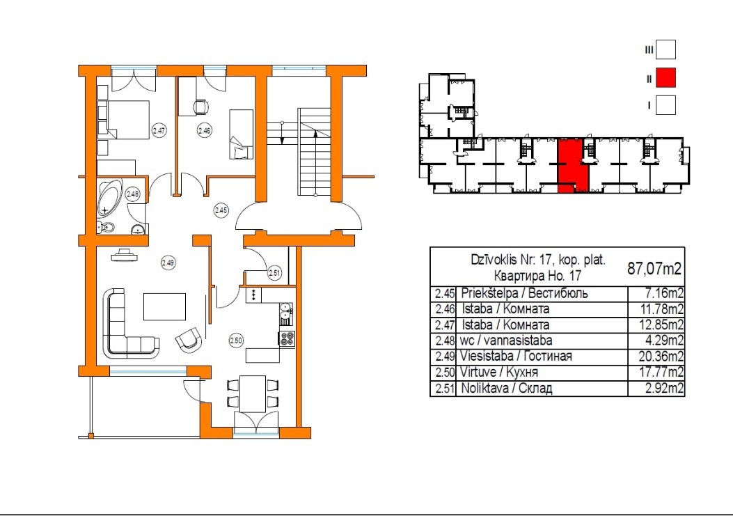
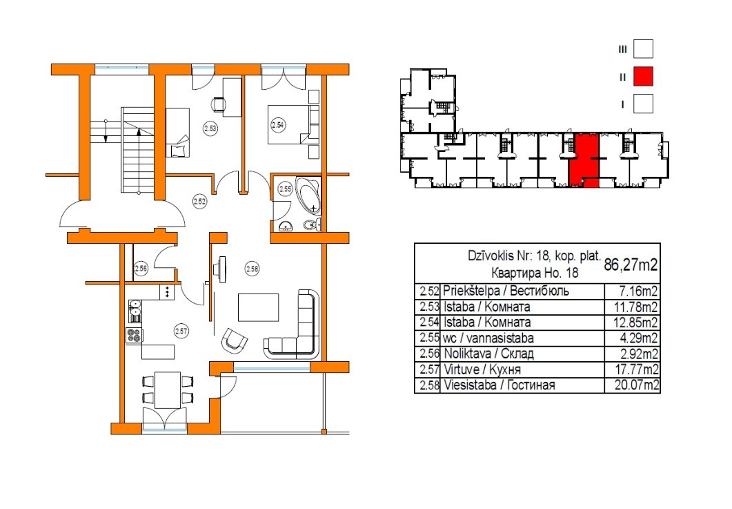
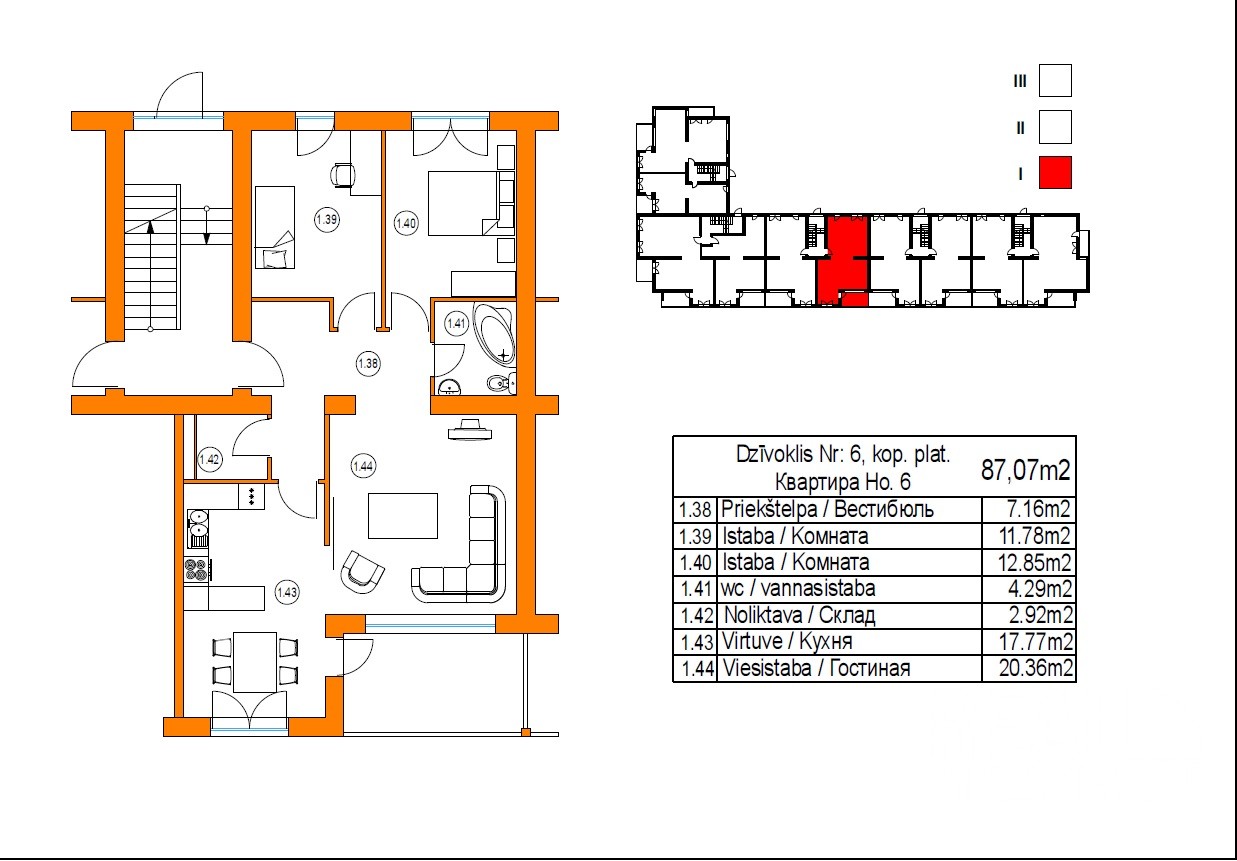
2 комн. квартира находится на морской стороне. Квартира Nr.12 расположена на 2\3 эт., общая площадь - 77 кв.м.
Квартира состоит:
- гостиная с кухонным блоком (33 кв.м.);
- спальня (17 кв.м.);
- ванная комната;
- терраса (6,5 кв.м.)
3-х этажный дом Library Hause включает в себя 31 квартиру площадью от 69 до 120 кв.м. Имеется автостоянка. Отведено место для детской площадки. К дому подведены городские коммуникации: электричество, водоснабжение и канализация. Отопление газовое. Сдача проекта в эксплуатацию намечена на август 2014года. Квартиры продаются с белой отделкой. На лестничной клетке всего 2 квартиры, при этом 5 подъездов. При строительстве дома используются современные тепло- и звукоизоляционные материалы. В каждой квартире подключены телефонные линии, интернет, телевидение. На всех дверях в подъездах установлены кодовые замки. Во всех местах общего пользования установлены датчики пожарной безопасности.
На данный момент проводится резервация 20 квартир на 1,2 и 3 этажах. Цена резервации - 10% Стоимость квартир от 143032 EUR до 253383 EUR
Одно парковочное место закреплено за каждой квартирой и будет предоставлено бесплатно.
| Описание квартиры: |
| ID объекта: |
A118 |
| Этаж: |
2\3 |
| Площадь квартиры: |
77 m2 |
| Адрес: |
ул. Дзимтенес |
| Количество комнат: |
2 |
| Количество санузлов: |
1 |
| Проект: |
Новый |
| Состояние: |
белая отделка |
| Риелтор: |
Rafails: +371 22833246,
rafails@realinvestment.lv |
|
| Местоположение: |
Проект – „Library House” находится в удобном месте. Рядом парк, сеть магазинов, кафе и ресторанов, при этом это район частной застройки - тихое зелённое место.
До моря – 10 минут. 3 минуты до станции Асари. До железной дороги 300 м., что практически не создаёт неудобства жителям дома. На автомобиле до центра Юрмалы, улицы Йомас и концертного зала Дзинтари, можно доехать за 10 минут. До Центра Риги за 30 минут, до аэропорта – 20 минут.
Дом окружает охраняемая, благоустроенная территория на земельном участке – 3632 кв.м. Предусмотрен паркинг на 30 автомобилей и детская площадка.
|
|
|
|
|
|
|
|