Отличная квартира в Меллужи
|
|
Место:
Латвия, Рижский район, Юрмала, Меллужи
Цена:
297 000 €
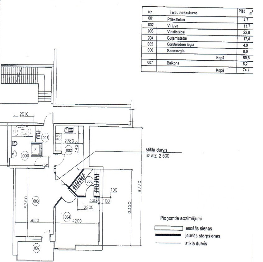
2 комн. квартира, 2\3 эт.. 75 кв.м.
Прекрасная квартира выдержанная в классическом стиле. Продаётся со всей обстановкой и техникой.
Квартира состоит:
-гостиная.
-кухня-столовая,
-спальня,
- ванная комната,
- балкон.
Вместе с квартирой продаётся 1 парковочное место.
Дом закрытого типа на 18 квартир, расположенный на благоустроенной, огороженной территории площадью 1849 кв.м., круглосуточная охрана, видеонаблюдение. Территория с красивым ландшафтом и детской площадкой.
Несущие стены и перекрытия выполнены из монолитного железобетона. Отопление – газовое, водоснабжение и канализация – городские. Дом сдан в эксплуатацию в феврале 2007 года.
| Описание квартиры: |
| ID объекта: |
A124 |
| Этаж: |
2\3 |
| Площадь квартиры: |
75 m2 |
| Адрес: |
ул. Каналу 9 |
| Количество комнат: |
2 |
| Количество санузлов: |
1 |
| Проект: |
- |
| Состояние: |
--- |
| Риелтор: |
Rafails: +371 22833246,
rafails@realinvestment.lv |
|
| Местоположение: |
|
Дом расположен на морской стороне в тихом месте в 200м от моря. Район с развитой инфраструктурой. До Риги 25 мин. До концертного зала Дзинтари 10 мин. |
|
|
|
|
|
|
|