Таунхаус в Булдури
|
|
Место:
Латвия, Рижский район, Юрмала, Булдури
Цена:
270 000 €
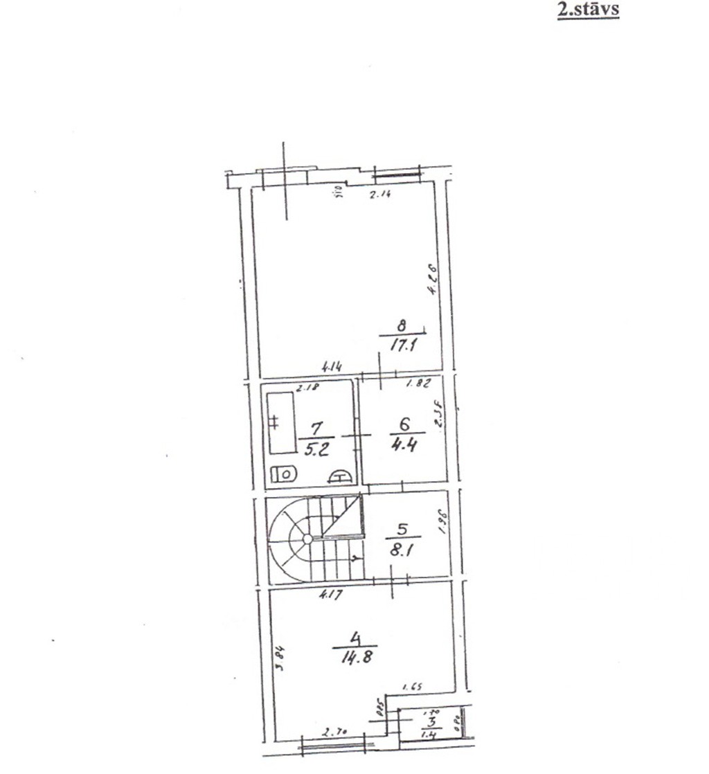
3 уров.4 комн. квартира, 141,6 м2, 2 входа.
Квартира состоит:
1 этаж:
- гостиная (29,6 м2),
- кухня - столовая (19,7 м2)
- туалет,
- выход в маленький, отдельный дворик.
2 этаж:
- спальня;
- детская с балконом;
- ванная комната.
3 этаж:
- спальня с балконом;
- ванная комната;
- техническое помещение.
Дом сдан в эксплуатацию 2004г. Перед домом, есть двор, выложенный брусчаткой, где предусмотрено место для парковки автомобилей. За домом небольшой садик.
Квартира продаётся с мебелью и техникой. Всё в хорошем состоянии.
Все коммуникации - городские. Газовое отопление.
| Описание квартиры: |
| ID объекта: |
A134 |
| Этаж: |
1+2+3 |
| Площадь квартиры: |
142 m2 |
| Адрес: |
ул. Ясминю 4 |
| Количество комнат: |
4 |
| Количество санузлов: |
3 |
| Проект: |
Новый |
| Состояние: |
отличное |
| Материал стен: |
кирпич |
| Риелтор: |
Rafails, t.+371 22833246,
e-pasts rafails@realinvestment.lv |
|
| Местоположение: |
|
Отличное место. До моря 5 минут. Рядом находится железнодорожная станция. На автомобиле до Риги можно доехать за 20 минут и 10 минут до аэропорта. До центра Юрмалы и концертного зала Дзинтари прогулочным шагом можно дойти за 30 минут. |
|
|
|
|
|
|
|