Пентхаус в Межапарке
|
|
Место:
Латвия, Рижский район, Рига, Межапарк
Цена:
250 000 €
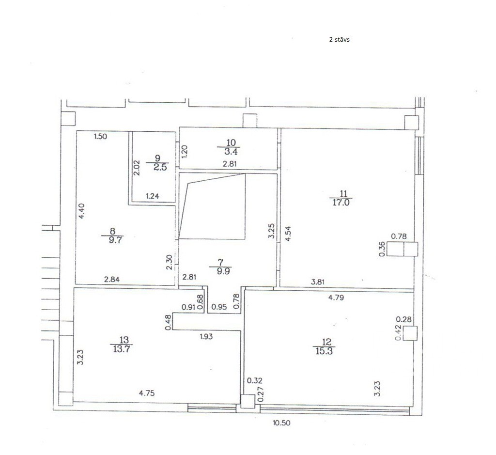
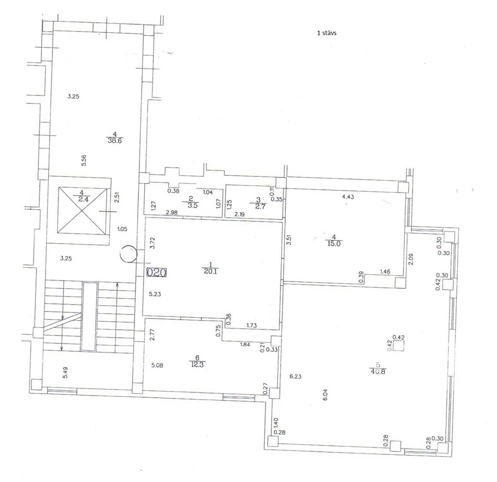
6 комн. апартаменты, 4+5\5эт., 166 кв.м.
Прекрасная двухэтажная квартира в новом проекте, с продуманной планировкой и дизайнерским ремонтом.
На 1 этаже находятся:
- гостиная с камином,
- полностью оборудованная кухня с дорогой бытовой техникой,
- спальня,
- кабинет,
- ванная комната.
На 2 этаже находится:
- хозяйская спальня с гардеробом и отдельной ванной комнатой,
- 2 детские спальни,
- ванная комната.
Квартира продаётся со всей обстановкой и техникой. Всё в отличном состоянии.
В цену входят так же 2 стоянки в подземном паркинге.
Проект Эзермалас 13 состоит из 6 корпусов, 96 квартир, на благоустроенной охраняемой территории в 1Га.
| Описание квартиры: |
| ID объекта: |
A144 |
| Этаж: |
4+5 |
| Площадь квартиры: |
5 m2 |
| Адрес: |
Ул. Эзермалас 13 |
| Количество комнат: |
6 |
| Количество санузлов: |
3 |
| Проект: |
Новый |
| Состояние: |
отличное |
| Материал стен: |
монолит |
| Риелтор: |
Rafails, t.+371 22833246, rafails@realinvestment.lv |
|
| Местоположение: |
|
Дом находится в элитном микрорайоне Межапаркс. Рядом озеро Кишэзерс. В 5 минутах ходьбы находится парк культуры и отдыха, где расположен один из старейших зоопарков Европы. |
|
|
|
|
|
|
|