Пентхаус в тихом Центре
|
|
Место:
Латвия, Рижский район, Рига, Центр
Цена:
420 000 €
6 комн. 2-х эт. квартира, 178м2, 6 и 7 этажи. Новый дом 2005г. постройки.
Чудесный панорамный вид на город. Терраса, 4 паркинга, автономное газовое отопление.
Квартира состоит;
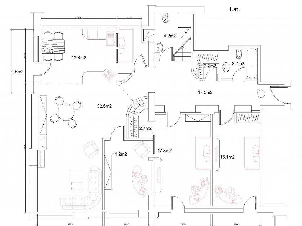
На 1 уровне.
- гостиная (32,5м2),
- 3 комнаты (18+15+11м2.),
- 2 санузла,
- кухня (14м2),
- лоджия.
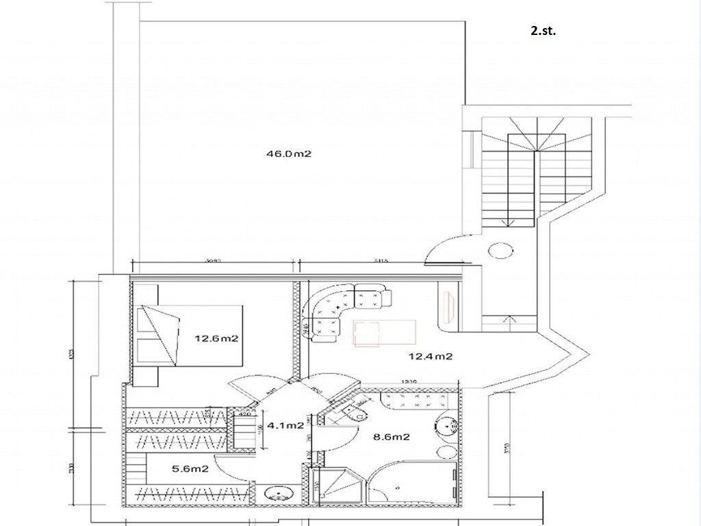
На 2 уровне:
- 2 комнаты ( 12,6+12,5м2),
- ванная комната (56м2),
- терраса с видом на старый город и на парк (46м2).
Квартира продается без отделки. По вашему заказу будет сделан качественный дизайнерский ремонт.
| Описание квартиры: |
| ID объекта: |
A15 |
| Этаж: |
6+7/7 |
| Площадь квартиры: |
178 m2 |
| Адрес: |
ул. Индрану 8 |
| Количество комнат: |
6 |
| Количество санузлов: |
3 |
| Проект: |
Новый |
| Состояние: |
серая отделка |
| Удобства: |
все |
| Материал стен: |
монолит |
| Риелтор: |
Rafails: +371 22833246,
rafails@realinvestment.lv |
|
| Местоположение: |
|
Дом находится в тихом месте. Рядом парк. Хорошее транспортное сообщение. Это лучшая квартира во всем доме. |
|
|
|
|
|
|
|