Дом с выходом на пляж.
Место: Латвия, Рижский район, Юрмала, Пумпури
Цена: 1 200 000 €

2 эт. Дом + гостевой дом в 50м до моря.

Площадь дома – 340 кв.м. Площадь гостевого домика – 89 кв.м.
1999г. постройки.
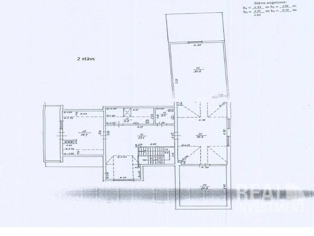
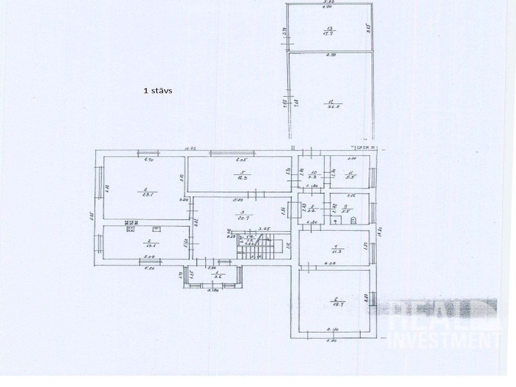
На 1 этаже находится;
- гостиная (23кв.м.),
- кухня (13 кв.м.),
- кабинет (16 кв.м.),
- гараж.
- помещения, где можно установить бассейн и сауну.
- санузел.

На 2этаже :
- 2 спальни (37+22),
- 2 санузла,
- холл ( 29 кв.м.)
- помещения, которые можно использовать под 2 спальни (36+22 кв.м.)

Гостевой дом:
- гостиная с кухней (21 кв.м.).
- 2 комнаты (11+10 кв.м.)
- веранда (14 кв.м.),
- санузел.
Полная внутренняя отделка, камин, сауна, гараж на 1 машину, вся мебель, встроенная кухня.

Описание дома:
ID объекта: H15
Количество этажей: 2
Площадь дома: 340 m2
Адрес: Ул.Иецавас 3
Количество комнат: 6
Количество спален: 5
Количество санузлов: 4
Состояние: отличное
Материал стен: дерево
Коммуникации: все городские
Отопление: газовое
Риелтор: Rafails: +371 22833246, rafails@realinvestment.lv
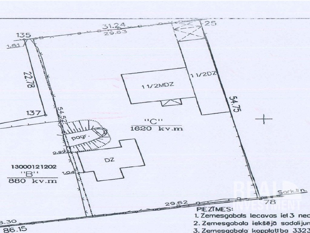
Описание участка:
Площадь участка: 1650 m2
Дополнительно: Участок -1650 кв.м. граничит с дюнной. Благоустроенная территория, брусчаткой выложенные подъездные пути. Палисадник на фоне классического дюнного соснового леса. Отдельный выход прямо на пляж.
   
Местоположение:
Тихое место, в стороне от массового наплыва отдыхающих, но 5 минут можете доехать до центра Юрмалы, до ул. Йомас или до концертного зала «Дзинтари».
До Риги можно доехать за 25 минут.