2 дома на морской стороне
|
|
Место:
Латвия, Рижский район, Юрмала, Меллужи
Цена:
280 000 €
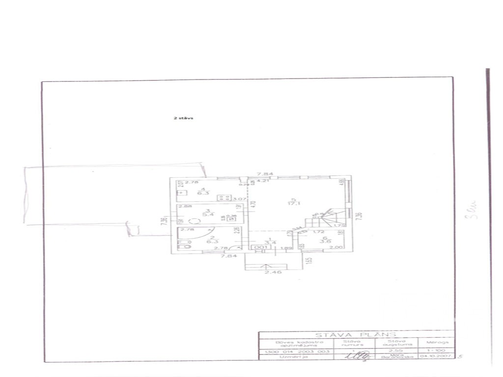
1 дом - 2 эт. новостройка, площадью – 150 кв.м., 4 комнаты, кухня, 2 ванные комнаты.
2 дом - 1 этажный деревянный дом ( 100кв.м.), 3 комнаты, кухня, веранда. Дом подлежит ремонту.
| Описание дома: |
| ID объекта: |
H18 |
| Количество этажей: |
2 |
| Площадь дома: |
240 m2 |
| Адрес: |
Ул. Баложу |
| Количество комнат: |
7 |
| Количество спален: |
5 |
| Количество санузлов: |
2 |
| Состояние: |
хорошее состояние |
| Материал стен: |
дерево |
| Коммуникации: |
все местные |
| Отопление: |
универсальный котел |
| Риелтор: |
Rafails: +371 22833246,
rafails@realinvestment.lv |
|
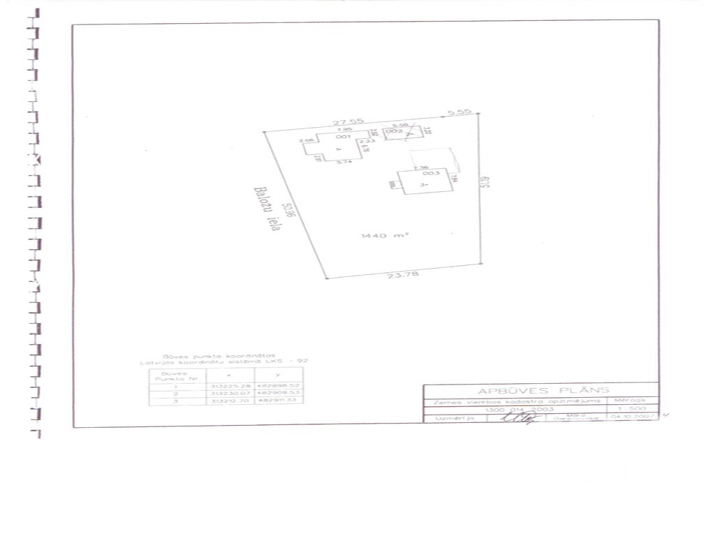
| Описание участка: |
| Площадь участка: |
1440 m2 |
| Достопримечательности: |
Тихое спокойное место. До моря – 200м.
Район с развитой инфраструктурой и отличным транспортом. До концертного зала Динтари и ул. Йомас не более 10 минут.
|
| Дополнительно: |
2 дома на одном участке, площадью (1440 кв.м.). |
| |
|
|
|
|
|
|
|
|