3 эт. дом в Дзинтари
|
|
Место:
Латвия, Рижский район, Юрмала, Дзинтари
Цена:
330 000 €
2009г. постройки, 244 кв.м., на ул. Турайдас
Дом состоит:
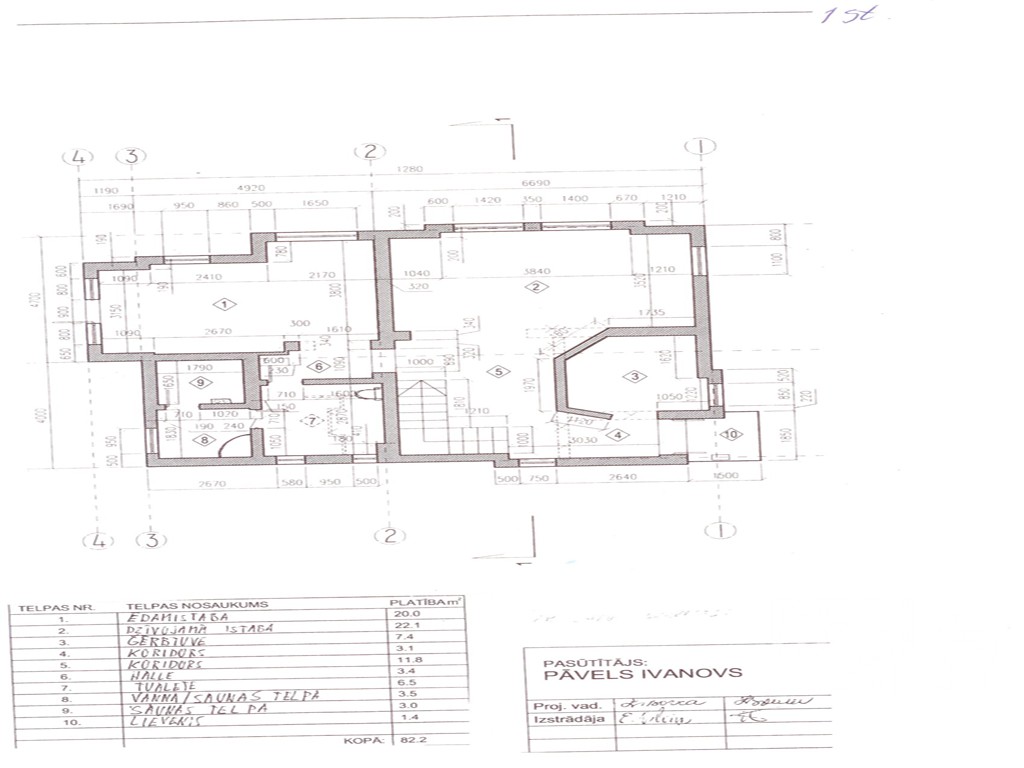
1этаж:
- гостиная – 22 кв.м.;
- кухня – столовая – 20 кв.м.
- гардероб;
- сауна;
- гостевой санузел.
- туалет
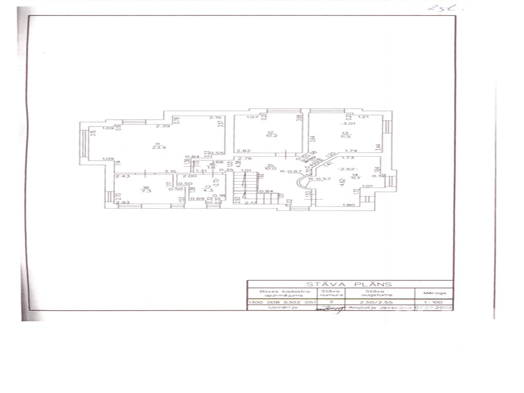
2 этаж:
- 4 спальни – 23,4 +11,5+11,1+10,2 кв.м.;
- 2 ванные комнаты;
- санузел.
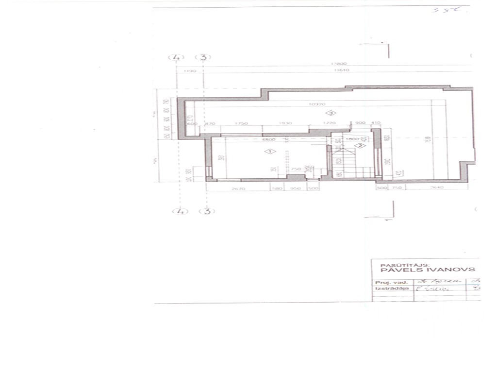
3 этаж:
- студия -19 кв.м.;
- холл;
-терраса – 49 кв.м.
В доме сделанная полная отделка. Дом продаётся с мебелью и бытовой техникой. Установлена система очистки воды.
| Описание дома: |
| ID объекта: |
H23 |
| Количество этажей: |
3 |
| Площадь дома: |
244 m2 |
| Адрес: |
Ул. Турайдас |
| Количество комнат: |
7 |
| Количество спален: |
5 |
| Количество санузлов: |
4 |
| Состояние: |
хорошее состояние |
| Материал стен: |
фибоблоки |
| Коммуникации: |
все городские |
| Отопление: |
газовое |
| Риелтор: |
Rafails: +371 22833246,
rafails@realinvestment.lv |
|
| Описание участка: |
| Площадь участка: |
543 m2 |
| Дополнительно: |
Площадь ухоженного участка – 543 кв.м. Автомотические ворота. Пере6д домом брусчатка. Место для парковки автомобилей.
За домом терраса, место для пикников и небольшой садик.
|
| |
|
| Местоположение: |
|
Тихий зеленый район, недалеко от центра города .10 минут пешком до ул. Йомас, концертного зала Дзинтари. 5 минут до реки Лиелупе. Прямая дорога до аэропорта (10 минут). До центра Риги – 20 минут. Рядом остановка автобуса. |
|
|
|
|
|
|
|