3 эт. здание на Тейке
|
|
Место:
Латвия, Рижский район, Рига, Тейка
Цена:
1 000 000 €
Площадь - 866 м2, земельный участок – 678 м2.
Офисное здание 1931 года постройки.
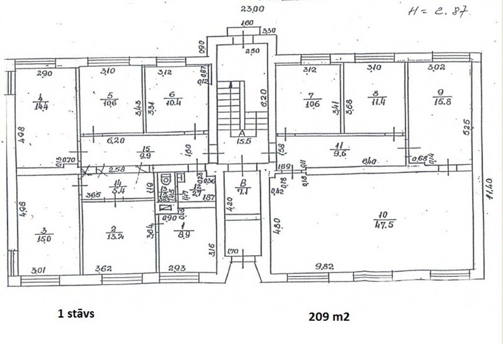
1 этаж – 10 комнат, возможно, использовать под магазины, рестораны, кафе и т.п.
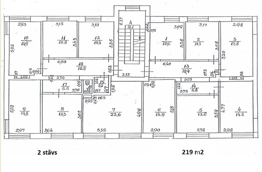
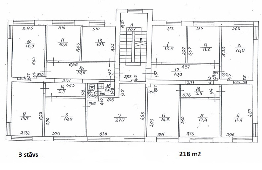
2 и 3 этажи – по 12 комнат – офисы, учебные классы, детский сад и т.п.
В доме так же, есть мансарда с двумя помещениями и санузлом.
Все коммуникации централизованные. Отопление и горячая вода от автономного газового котла.
Здание целиком можно использовать:
- учебное заведение,
- медицинский центр,
- гостиницу,
- жилой дом.
Возможна долгосрочная аренда всего здания, по этажно или по помещениям.
| Описание дома: |
| ID объекта: |
H43 |
| Количество этажей: |
3 |
| Площадь дома: |
866 m2 |
| Адрес: |
Бривибас гатве 262 |
| Количество комнат: |
36 |
| Количество санузлов: |
3 |
| Состояние: |
удовлетворительное |
| Материал стен: |
кирпич |
| Коммуникации: |
все городские |
| Отопление: |
газовое |
| Риелтор: |
Rafails: t.+371 2833246
rafails@realinvestment.lv |
|
| Описание участка: |
| Площадь участка: |
678 m2 |
| Дополнительно: |
За домом находится небольшой сад, с отдельным выходом, где можно без проблем установить детскую площадку, место для пикников и т.п. |
| |
|
| Местоположение: |
|
Здание находится на главной Рижской улице – Бривибас. Это одно из самых оживлённых транспортных артерий города. Ежедневно мимо проезжают и проходят десятки тысяч человек. По соседству расположено самоуправление Видземского предместья. Рядом бесплатная парковка. До Центра Риги не более 5 минут. |
|
|
|
|
|
|
|